Zobacz przed/po
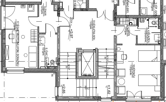
Opis: Rzuty po i przed dostosowaniem klatki schodowej do wymagań przepisów przecipożarowych dla domu opieki społecznej dla osób starszych ("dom spokojnej starości") oraz zmiana funkcji pomieszczenia usługowego na gabinet medycznej pomocy doraźnej
icon_container
icon_container
| Projekt i wykonanie: WIZART |
Wzornictwo
|
Wnętrza
|
Architektura
|
O nas
|
Oferta
|
Kontakt
|
Porady
|