Zobacz przed/po
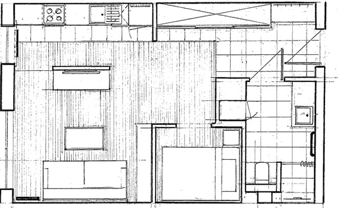
Opis: Projekt zmiany aranżacji, przebudowy ścian wnętrza oraz instalacji wodnej, kanalizacyjnej, wentylacyjnej i elektrycznej oraz dobór mebli i materiałów dla kawalerki na potrzeby 2 osób
icon_container
icon_container
| Projekt i wykonanie: WIZART |
Wzornictwo
|
Wnętrza
|
Architektura
|
O nas
|
Oferta
|
Kontakt
|
Porady
|